Bestill katalog
Bestill katalog

Fløyen - moderne hus med saltak

Fløyen er et spennende moderne hus med store glassflater og saltak. Denne høyden er utnyttet til å gi god takhøye og romfølelse i stuen. Det stående og smale trepanelet gjør uttrykket moderne og stilfullt.

  • BRA 225,0 m²
  • P-rom
  • 5

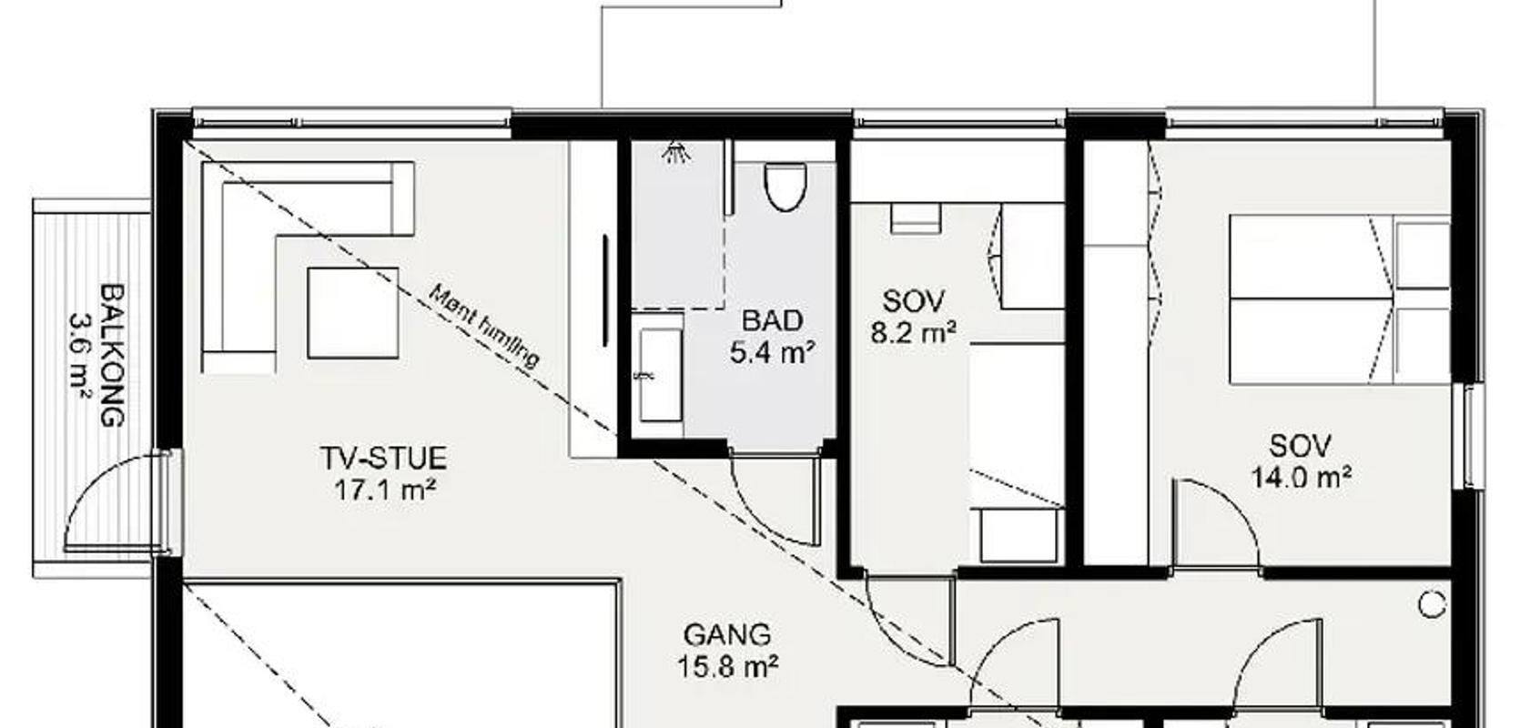
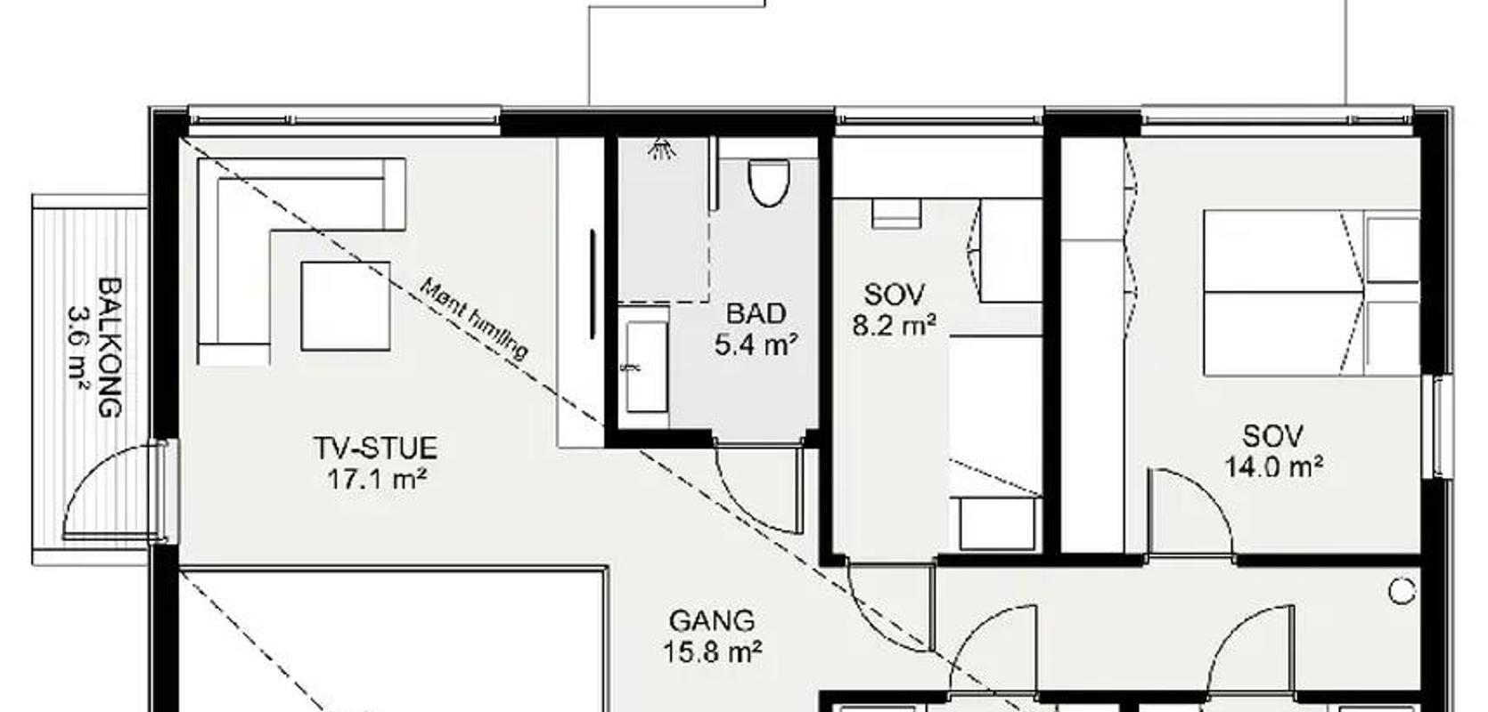
Første etasje rommer et stort kjøkken med rikelig plass til spisestue, samt en stor adskilt stue. Fra allrommet går du via et walk-in-closet til hovedsoverommet. I etasjen er det også et bad, et vaskerom og en bod.

Stor takhøyde med åpen løsning
Over spisesonen er det åpent opp til andre etasje, slik at takhøyden blir ekstra stor. Dette, sammen med de store vinduene i hjørnet, gjør at rommet skiller seg ut og blir lyst og åpent. I andre etasjen er det fire soverom, et allrom og et bad. Etasjen har mønet himling, som gir huset et flott særpreg og det føles luftig. Her er det også utgang til en balkong. Selv om huset har saltak, får det en moderne stil. Her kombineres ulike materialer og detaljer.

Fløyen er tegnet av Sara Ezeta og Trine Tellefsen.

Bestill katalog