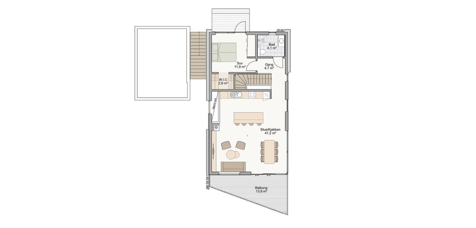
Vårt spesialtilpassede funkishus, Form 1.0, er den ideelle løsningen for områder med begrenset tomtestørrelse. Boligen er på 144 kvadratmeter og vil derfor være et rimeligere hus – både å bygge, men også med tanke på utgifter som strøm og vedlikehold. Form 1.0 er laget av miljøvennlige trematerialer, noe som gjør det til et bærekraftig valg for miljøbevisste kunder.

Form 1.0 er designet med tanke på små og smale tomter, men kan enkelt tilpasses ulike tomtesituasjoner, inkludert skrå, flat eller større tomter. Balkongen er et fleksibelt element som kan tilpasses tomten og utsikten, og kan også fjernes helt om ønskelig.
Garasjen er en løsrevet enhet som kan plasseres på forskjellige måter på tomten, men også være et tilvalg. Garasjen kan enkelt tilpasses boligen og fungere som en del av huskroppen, og det er også mulig å etablere en takterrasse på garasjen.
Med funkishuset Form 1.0 fra Mesterhus får du en fleksibel og arealeffektiv husmodell som kan tilpasses dine behov og ønsker.